Проектирование фасадов и фасадных систем для навесных вентилируемых фасадов марки КМД
От грамотного КМД зависит надежность всей конструкции фасада и снижение затрат на строительство.
КМ - конструкции металлические. Это общий проект без деталировки.
КМД - конструкции металлические деталировочные. Это подробное описание всех деталей и элементов будущих конструкций, материалов, способа их изготовления и последующего монтажа.
Мы производим навесные фасадные системы различной степени сложности более 10 лет. Масштаб проектов - от загородного дома и школы до супермаркета и жилищного комплекса.
Если Вы заказчик или подрядчик
Мы возьмем на себя часть вашей работы: например, геодезическую съемку и сканирование фасада здания, испытание анкеров на вырыв, разработаем КМД со всеми узлами примыканиями, раскладкой панелей максимально подробно. А КМД со спецификациями, всеми нюансами и титульным листом вы получите бесплатно при заказе у нас комплекта материалов.
Если Вы архитектор
Для вас есть выгодное предложение: если конечный заказчик, для которого вы делаете проект будет покупать продукцию у нас, вы получите агентское вознаграждение. А ваш заказчик получит продукцию по ценам ниже рыночных, так как он будет работать на прямую с производителем.Стоимость разработки КМД за м2 зависит от многих факторов:
- Площадь фасада.
- Количество откосов, выступов, углов и специфических архитектурных решений.
- Применяемых материалов.
Но не превышает 2,5-4% от стоимости поставляемых материалов, при этом:
- Корректная итоговая спецификация с количеством поставляемых материалов сводит остатки с 10-15% к 0-2%, тем самым экономит средства заказчика.
- Возможность провести корректную закупку среди поставщиков, с торгами за фактически поставляемые материалы, что позволит избежать искусственного завышения цен. Экономия для заказчика от 5% до 30% на поставляемый комплект материалов.
- Получения исходных документов: тех задание от заказчика, проект (серии КМ), Брэндбук, если есть.
- Замер фактических размеров на объекте, если необходимо, выполнить топографическую съёмку.
- Расчет и испытания, разработка чертежей.
- Согласование проекта.
Проект КМД нужен для:
- Деталировочной разработки всех узлов на основании чертежей КМ и оптимизации материалов конкретного производителя для применения к определенному объекту строительства.
- Унификации поставляемой продукции в спецификацию и возможности провести максимально выгодную и конкурентную закупку.
- Изготовление всех изделий производителем с определенными техническими параметрами, требованиями и допусками.
- Правильной сборки и монтажа.
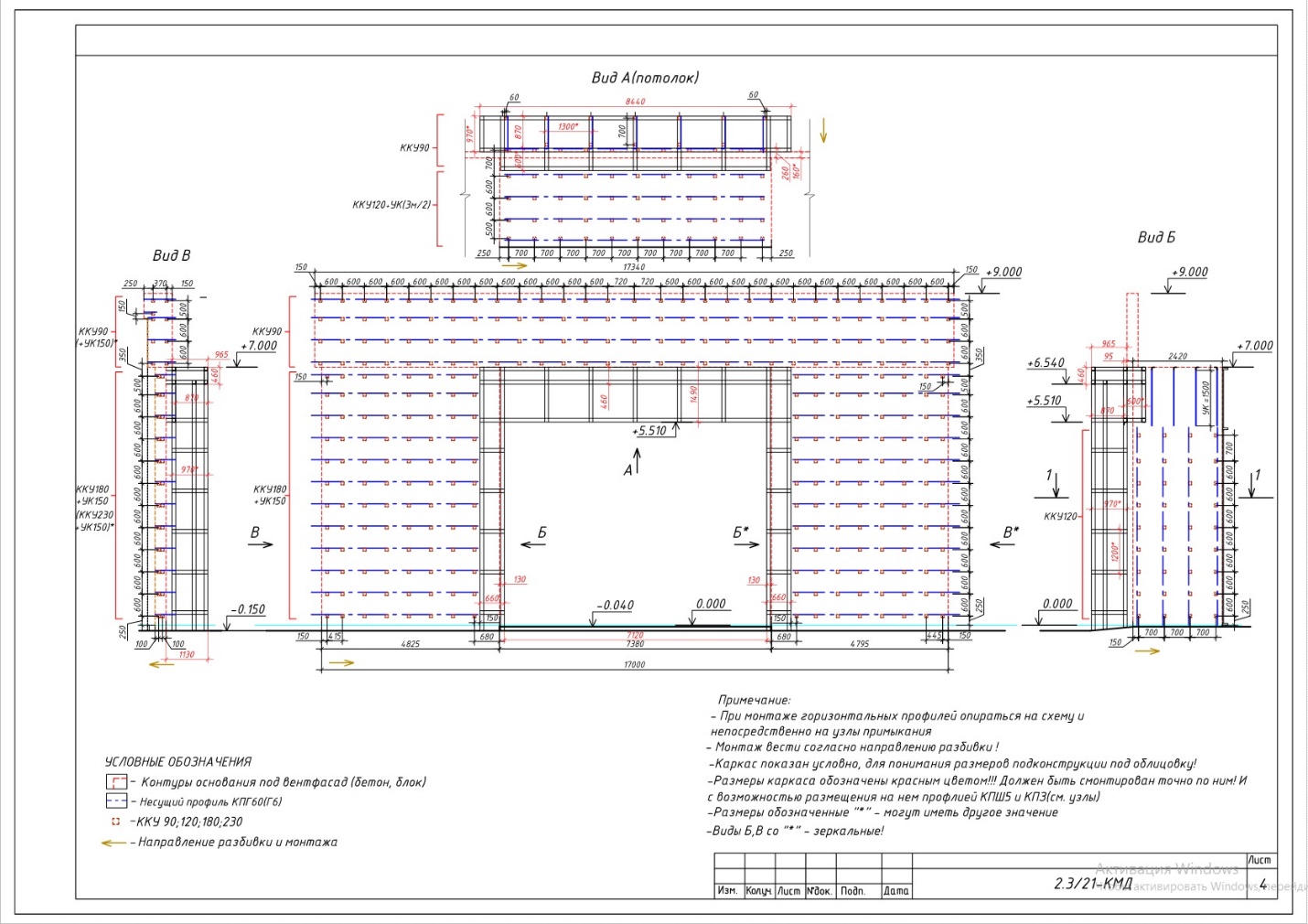
Фасадная проектная документация марки КМД включает в себя следующие разделы:
1. Пояснительная записка

2. Монтажные схемы облицовочных изделий

3. Монтажные схемы кронштейнов

4. Монтажные схемы несущих профилей

5. Узлы примыкания

6. Спецификации изделий

*При необходимости возможность разработки архитектурного решения.
Над вашим проектом работают
Порядок действий при проектировании вентфасада в ООО «ПрофСталь-Строй»:
- Предоставляем бесплатный ориентировочный расчет
- Производим геодезическую съемку и замеры
- Согласовываем Визуализацию будущего фасада здания с архитектором и представителем заказчика
- Разрабатываем КМД рабочую документацию с узлами и спецификацией для будущего производства и монтажа
- При необходимости делаем и предоставляем опытные образцы
- Производим и упаковываем
- Поставка на объект
Пример документации






Пример нашего объекта



